Prodej, byt, Pardubice, 4+kk, 104m2

Popis nemovitosti

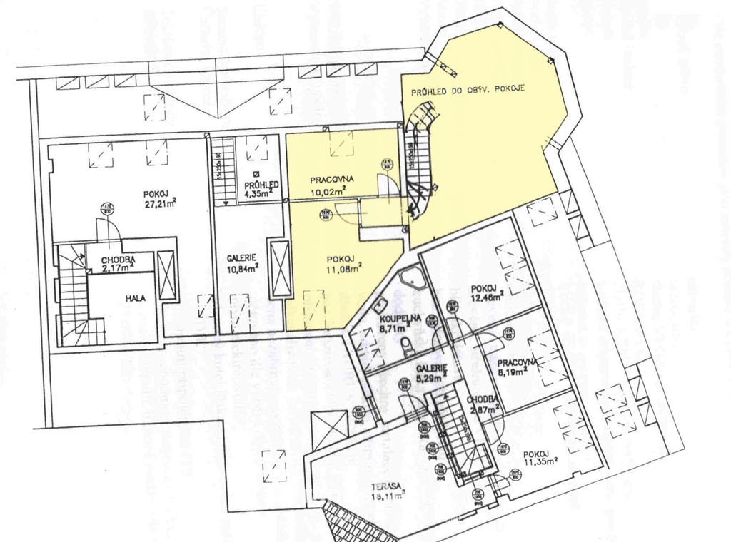
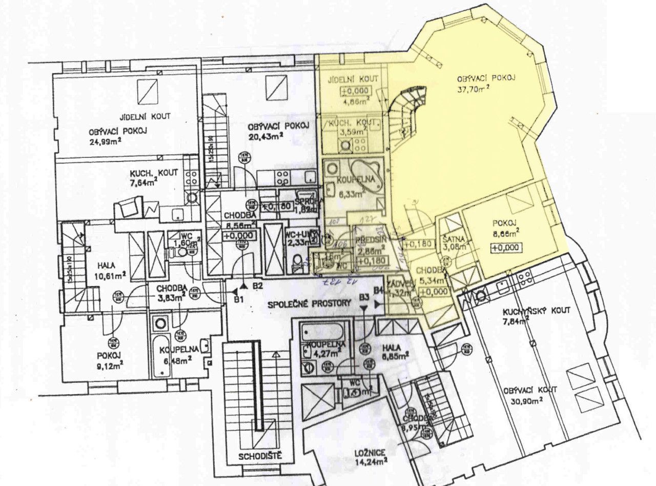
Výhradně nabízíme k prodeji byt dispozičně 4+kk, o podlahové ploše 104m2, umístěného ve 4.patře zděného domu, ve vyhledávané lokalitě centra města Pardubice - Bubeníkova ulice. Byt je rozložen do 2 podlaží, kdy v jeho přízemí se nachází vstupní chodba, šatna, pokoj využívaný jako pracovna, hlavní - centrální místnosti - rozdělena na oddychový a jídelní prostor, kuchyňské zázemí vč. kuchyňské linky se spotřebiči (sklokeramická varná deska, ele trouba, myčka) a dále koupelna a samostatná toaleta. Z centrální místností je po schodišti přístup do mezonetu, kde jsou umístěny další dva pokoje. Byt byl vybudován v roce 2002, jeho orientace je především na jih, což ve spojení ze zvýšeným stropem v centrální místnosti, zaručuje příjemné osvětlení všech místností. Vytápění a ohřev vody zajištuje plynový kotel, připojení netu optickým kabelem poskytuje Edera, TV společná anténa + kabel. Dveře, schody masiv, podlahy plovoucí a dlažba, okna plast. Součástí prodeje může být i vybavení bytu. Nízké náklady na bydlení. Výtah ve fázi dokončení projektu a vydání povolení ke stavbě - plánováno 2019. Veškerá občanská vybavenost a obchodní příležitosti v docházkové vzdálenosti. Výborná dostupnost všech částí města pomocí MHD. Doplňující informace u obchodníka společnosti.
Cena: Na vyžádání
Prodej
Zrealizováno

Typ objektu: Byt
Dispozice: 4+kk
Stav: Velmi dobrý
Užitná plocha: 104 m2
Vlastnictví: Osobní
Postaveno: 2003
Výtah: Ano
Evidenční číslo: 00173
Stavební prvek: Cihla
Plyn: Zaveden
Topení: Ústřední plynové
Voda: Vodovod
Zobrazit více položek

Kontakt na obchodníka

Kontaktní formulář